1200 S Mitchell Street #9 UNITS
Cadillac, Michigan 49601

Closed / MLS #1940757 / Institutional or Developmental / Cadillac
Listing information updated 2/20/2026 at 4:43pm
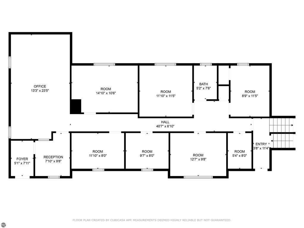
Stand-alone office building with nine separate offices, plus a drop-in desk area for rent. Private offices range from $400-$600 per month, and drop-in space runs $200 per month. Rent includes all utilities, exterior and interior maintenance, and it even includes internet and a security system with cameras! There is one shared bathroom and a common waiting area. There is private parking adjacent to the property. The building is clean and well-maintained, and is located on the south end of Cadillac's business district. This is a great, affordable option for the private office space your business needs.

Listing Agent: Greg Bosscher

Listing Office: Five Star Real Estate - Shelby St Cadillac

Listing Email: greg@gregbosscher.com

Disclaimer: Based on information from the association of REALTORS® (alternatively, from the MLS) as of 2/20/2026 at 4:43pm. IDX information is provided exclusively for consumers’ personal, non-commercial use. It may not be used for any purpose other than to identify prospective properties consumers may be interested in purchasing. Data is deemed reliable but is not guaranteed accurate by the MLS.

Map of 1200 S Mitchell Street #9 UNITS, Cadillac, MI 49601

Not quite what you are looking for?

Similar listings for sale near 1200 S Mitchell Street #9 UNITS, Cadillac, MI 49601


Like the area?

More homes for sale near 1200 S Mitchell Street #9 UNITS, Cadillac, MI 49601


1200 S Mitchell Street #9 UNITS, Cadillac, MI 49601 is a institutional or developmental which sold for $2,500. This institutional or developmental has been listed on @properties REMI Christie's International Real Estate since November 25th, 2025 and was built in 1949.