2020 Walnut Street #4A
PHILADELPHIA, Pennsylvania 19103

Rented / MLS #PAPH2443394 / Rental / PHILADELPHIA
Listing information updated 5/28/2025 at 1:01pm
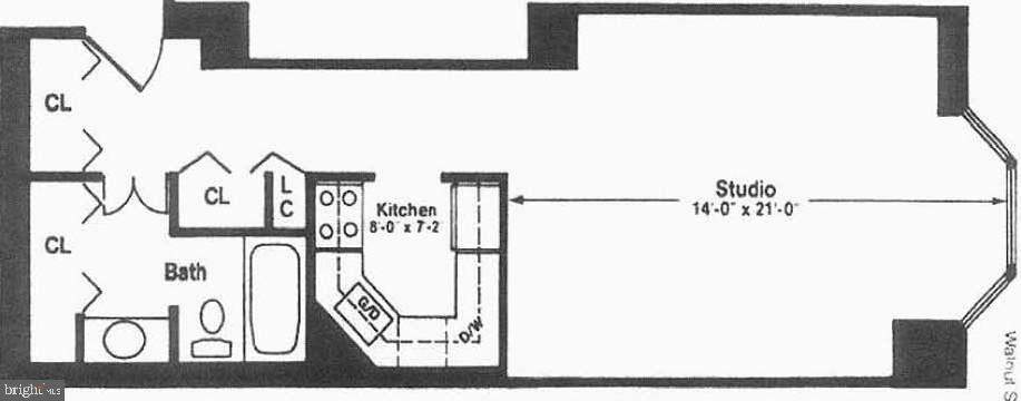
NEW PHOTOS COMING SOON! Updated studio apartment with private balcony and city views at The Wanamaker House! Enter the home through a foyer with three wall closets providing ample storage space. The living/dining area has floor-to-ceiling windows gleaming with natural light and access to the private balcony. There is a fully-equipped kitchen with modern white cabinetry and stainless steel appliances. A brand new quartz countertop will be installed. The full hall bathroom enjoys an updated white vanity and tub shower. Vinyl floors will be installed throughout. The Wanamaker House is located one block from Rittenhouse Square and provides easy access to both Center City and University City; residents enjoy a 24-hour doorman, a seasonal rooftop pool, a fitness center, and a parking garage available for an additional fee (subject to availability). All common areas were recently renovated including the lobby, hallways, meeting room, amenity lounge, and fitness center, designed by world- renowned architect Cecil Baker. Ask about our leasing incentives.

Listing Office: Allan Domb Real Estate

Listing Office Phone: 215.545.1500

Disclaimer: The data relating to real estate for sale on this website appears in part through the BRIGHT Internet Data Exchange program, a voluntary cooperative exchange of property listing data between licensed real estate brokerage firms, and is provided by BRIGHT through a licensing agreement. Listing information is from various brokers who participate in the Bright MLS IDX program and not all listings may be visible on the site. The property information being provided on or through the website is for the personal, non-commercial use of consumers and such information may not be used for any purpose other than to identify prospective properties consumers may be interested in purchasing. Some properties which appear for sale on the website may no longer be available because they are for instance, under contract, sold or are no longer being offered for sale. Property information displayed is deemed reliable but is not guaranteed. Copyright 2025 Bright MLS, Inc.

Map of 2020 Walnut Street #4A, Philadelphia, PA 19103

Not quite what you are looking for?

Similar listings for sale near 2020 Walnut Street #4A, Philadelphia, PA 19103


Like the area?

More homes for sale near 2020 Walnut Street #4A, Philadelphia, PA 19103


2020 Walnut Street #4A, Philadelphia, PA 19103 is a rental which rented for $1,675. This rental has been listed on RLAH @properties since February 7th, 2025 and was built in 1980.