Lot 16 S Ridgeland Avenue
Monee, Illinois 60449

Closed / MLS #12450108 / Vacant Land / Monee
Listing information updated 11/11/2025 at 8:23pm
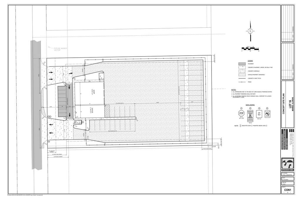
Great Location - Almost 2 Acre Vacant Lot! Zoned Industrial | Minutes to I-57, Amazon Distribution Center & TA Truck Stop This nearly 2-acre vacant lot offers an exceptional opportunity in a prime industrial corridor. Conveniently located just minutes from I-57, the Amazon Distribution Center, and the TA Truck Stop, this property is perfectly positioned for growth and accessibility. Zoned Industrial - ideal for light industrial use, warehouse, flex space, or office development High Visibility & Easy Access - excellent exposure for business operations Utilities Nearby - electric and gas available in the area Expansive Site - almost 2 acres of buildable potential Whether you're looking to expand operations, build a new facility, or secure a strong investment, this property provides unmatched potential in a fast-growing area.This site offers a highly functional layout designed for both industrial operations and office use: Site Plan Features 16 dedicated parking spaces for semi-trucks Excellent circulation and accessibility for trucking operations Building Specifications (5,950 SF total) Shop Area: 3,850 SF 3 bays, each with 12' x 14' overhead doors 70' deep bays for optimal vehicle/equipment access Office Area: 2,100 SF Flexible floor plan for administrative and support functions This combination of ample semi-truck parking, functional shop space, and modern office accommodations makes it an ideal property for logistics, trucking, light industrial, or service operations.

Listing Office: Optimus Realty Inc

Listing Office Phone: 773.561.3585

Disclaimer: The data relating to real estate for sale on this website comes courtesy of Midwest Real Estate Data, LLC as distributed by MLS GRID. Real estate listings held by brokerage firms other than @properties are marked with the Broker Reciprocity thumbnail logo and detailed information about them includes the name of the listing brokers. Properties displayed may be listed or sold by various participants in the MLS. Based on information submitted to the MLS GRID as of 11/11/2025 at 8:23pm. All data is obtained from various sources and may not have been verified by broker or MLS GRID. Supplied Open House Information is subject to change without notice. All information should be independently reviewed and verified for accuracy. Properties may or may not be listed by the office/agent presenting the information. Some listings have been excluded from this website.


Not quite what you are looking for?

Similar listings for sale near Lot 16 S Ridgeland Avenue, Monee, IL 60449


Like the area?

More homes for sale near Lot 16 S Ridgeland Avenue, Monee, IL 60449