$3,895,000
5
beds
4
baths
1
half bath
7,065
square ft

1520 N Dearborn Parkway
Chicago, Illinois 60610

Contingent / MLS #12533469 / Single Family / Near North Side
Listing information updated 1/9/2026 at 10:43pm
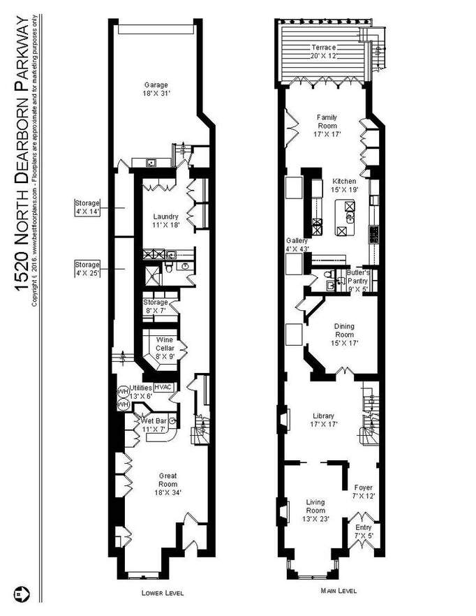
Step inside this masterfully restored circa 1898 Gold Coast home where historic architecture blends seamlessly with contemporary updates, creating a rare, truly move-in-ready residence on iconic Dearborn Street. Tall ceilings, restored original details, and beautifully updated spaces define every level of this home. The formal living room offers a bay window with original stained glass, a gas fireplace, and preserved millwork. Pocket doors open to a sophisticated library featuring the fully restored marquetry ceiling and an additional fireplace-an ideal space for work, reading, or quiet retreat. French doors lead to the formal dining room, a refined backdrop for entertaining with surround sound and period moldings. On the main level, a gallery hallway anchored by lantern lighting and skylights creates an architectural moment all its own, enhancing light, scale, and circulation while connecting the primary living spaces. Just beyond, a fully updated and open kitchen features quartzite counters, custom cabinetry, and premium Sub-Zero, Dacor, and Miele appliances. The kitchen transitions naturally to a large family room with surround sound, wood paneling concealing storage, and a hidden TV that maintains clean sightlines. Three sets of French doors open to an irrigated terrace with a fountain-supporting easy indoor-outdoor living. A discreet service hallway offers additional circulation and includes a powder room for guests. The second level presents two private bedroom suites, each positioned for separation and privacy. The east Primary suite features original stained glass, a gas fireplace, two walk-in closets, and a spa bath with heated floors, steam shower, jetted tub, and Waterworks fixtures. The west bedroom suite offers French doors to a private terrace, custom closets, and a bath with soaking tub, separate shower, and Waterworks fixtures. A dedicated home office with custom built-ins sits between both suites, supporting a productive work-from-home environment. The third level includes three additional bedrooms, a full bath with dual vanity, and a built-out walk-in closet. The lower level features a secondary entrance, a recreation room with bar and appliances, a temperature-controlled wine cellar, large laundry room, abundant storage, and an attached heated two-car garage. Updated HVAC systems, smart wiring, sprinkler system, and preserved architectural character complete this offering-delivering scale, livability, and historic integrity in one of Chicago's most desirable neighborhoods. Steps to the lakefront, parks, boutique shopping, renowned dining, and the Latin School of Chicago. A rare combination of restored craftsmanship, architectural interest, and move-in-ready comfort-right in the heart of the Gold Coast.

Listing Office: @PROPERTIES

Listing Office Phone: 773.472.0200

Disclaimer: The data relating to real estate for sale on this website comes courtesy of Midwest Real Estate Data, LLC as distributed by MLS GRID. Real estate listings held by brokerage firms other than @properties are marked with the Broker Reciprocity thumbnail logo and detailed information about them includes the name of the listing brokers. Properties displayed may be listed or sold by various participants in the MLS. Based on information submitted to the MLS GRID as of 1/9/2026 at 10:43pm. All data is obtained from various sources and may not have been verified by broker or MLS GRID. Supplied Open House Information is subject to change without notice. All information should be independently reviewed and verified for accuracy. Properties may or may not be listed by the office/agent presenting the information. Some listings have been excluded from this website.


Not quite what you are looking for?

Similar listings for sale near 1520 N Dearborn Parkway, Chicago, IL 60610


Like the area?

More homes for sale near 1520 N Dearborn Parkway, Chicago, IL 60610


1520 N Dearborn Parkway, Chicago, IL 60610 is a single family home currently listed at $3,895,000. 1520 N Dearborn Parkway features 5 Beds, 4 Baths, 1 Half Bath. This single family home has been listed on @properties Christie's International Real Estate since January 5th, 2026 and was built in 1898. Nearby schools include Ogden International and Lincoln Park High School. The nearest transit stops include Sedgwick CTA Brown line.